BAZEN IN ŠPORTNO ZDRAVSTVENI CENTER - DEBELI RTIČ
Debeli Rtič
Gradbeno dovoljeneje 2007
Leto izgradnje 2009
Bruto etažne površine 6200 m2

Avtorji arhitekture Darko Lečnik udia, Milojka Lečnik Urbar udia in Aljoša Trebše udia, odgovorni vodja projekta in odgovorni projektant arhitekture Milojka Lečnik Urbar udia



Arhitekturna zasnova upošteva raznolikost programov in jih vmešča v izredno občutljiv prostor meditaranskega vrta, ob upoštevanju orientacije primerne za posamezne programe, vedutne kvalitete prostora in potrebo po ohranitvi kvalitetnega zelenja. Na nek način vmešča objekt v prostor tako kot da je dobro vraščen v okolje, kot da je tu že od nekdaj.

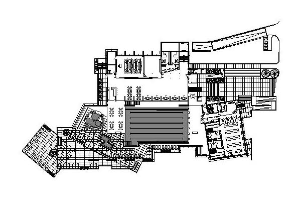
Projektna zasnova povezuje več sklopov programov v eno celoto: centralna recepcija z gostinsko ponudbo je osrednji družabni prostor, ki se nadaljuje ali ločuje v večnamenski prostor z mobilno steno. Mokri del združuje samostojen vhod tudi za zunanje obiskovalce in povezavo z objektom preko garderob, tušov in filtrov, skozi katera vstopajo obiskovalci v rekreacijski del objekta: pol olimpijski in masažni bazen, sauno svet ter terapeudski del s hidroterapijo, fango oblogami, vodnimi masažami... Obbazenski prostor se v letnem času podaljšuje na zunanjo teraso - naravni solarij, ki je vmeščena med sredozemsko rastlinje. Suhi del terapeutskih programov: predvideva začasno lokacijo ordinacije, prostore za inhalacijo, elektro terapijo, feetess, solarij in ostali tehnični, servisni, pomožni spremljajoči program, potreben za tehnološko delovanje celotnega objekta.. Nastanitveni del predvideva 66 ležišč apartmajskega tipa in 26 ležišč v dvoposteljnih sobah s kopalnico. Apartmaji se podaljšujejo v loggie, ki nudijo sončno zaščito v letnem času in lep pogled na morje.

Koceptualno novopredvideni objekt dopolnjuje ponudbo zdravilišča in se dobro navezuje na obstoječo vhodno prometno komunikacijo. Arhitekturna rešitev je sodobna, uporablja tradicionalne materiale na moderen način. Svojo moč izžareva v jasnih volumnih, prepoznavnih zunanjih oblikah, v podrobnostih stikanja različnih elementov in pri izbiri in uporabi naravnih materialov. Interieri so transparenti, navezani na zunanje prostore in med seboj. Prostori so polni svetlobe, zanimivih pogledov na vzven in v notranjost. Predlagani objekt sicer nadgrajuje obstoječe stavbno tkivo že izvedenih novih zgradb v kompleksu zdravilišča.